Menu
  • Process
  • Projects
  • Services
  • Contact
April 13, 2021April 20, 2021

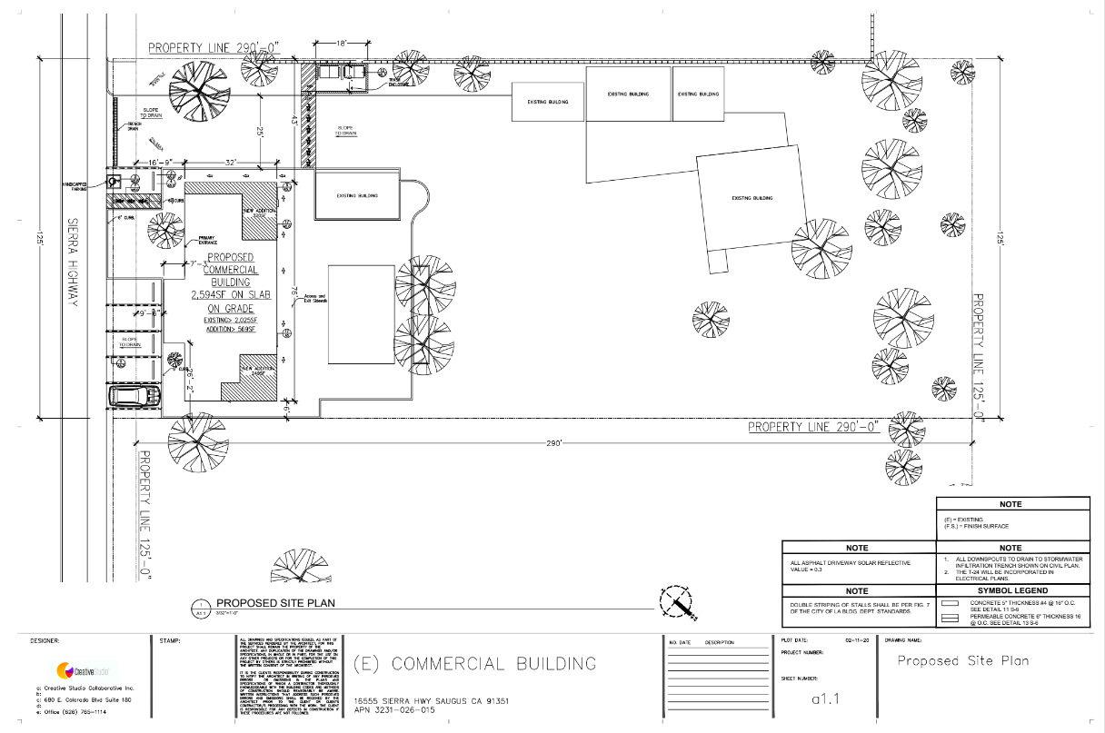
Sierra Hwy

Commercial by admin

Sierra Hwy

Tagged Commercial

Post navigation

Georgia Parking Structure
Supplements